POLITIK
Erweiterung kostet knapp 3,7 Millionen Euro
Marienheide - Im Bau- und Planungsausschuss wurden gestern die Pläne für das Gelände des Feuerwehrhauses vorgestellt - Auch an der Kirche in Kotthausen soll gebaut werden.
Von Leif Schmittgen
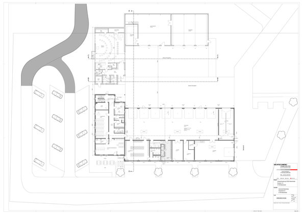
Bei der gestrigen Sitzung des Marienheider Bau- und Planungsausschusses stellte der Ründerother Architekt Frank Reuter die Pläne für die Erweiterung des Feuerwehrhauses vor. Auf dem Bestandsgelände an der Klosterstraße soll weiterer Platz für Einsatzfahrzeuge geschaffen werden, außerdem werden Lagerräume gebaut, wovon einer in den anderen integriert wird. Reuter, selber als Feuerwehrmann aktiv, erläuterte die Gründe: „UV-Strahlung schadet den Schläuchen, deshalb werden sie in Zukunft im Dunkeln aufbewahrt“, so der Architekt. Zusätzlich wird im Obergeschoss eine Kleiderkammer eingerichtet. In einem zweiten Gebäuderiegel soll künftig der Musikzug ein neues Zuhause finden. Das bisherige Domizil in der Heier Grundschule an der Leppestraße muss zugunsten der OGS-Betreuung aufgegeben werden. Am neuen Standort entsteht neben einem Probenraum auch ein Lager für Instrumente.
![]()
[Grafiken: Frank Reuter.]
Sind diese Arbeiten beendet, werden im Bestand die Sanitäranlagen geschlechterspezifisch erweitert, konkret werden unter anderem Umkleide- und Duschmöglichkeiten für Frauen geschaffen. Im aktiven Dienst beteiligen sich inzwischen zehn Frauen. Viele junge Mädchen engagieren sich in der Jugendfeuerwehr. In den zurzeit veranschlagten Gesamtkosten von gut 3,6 Millionen Euro sind auch Gelder für eine Höhenangleichung für die Fahrzeughalle auf abschüssigem Gelände enthalten, außerdem bekommen die Erweiterungsbauten ein Pultdach. Optisch wird man sich dem etwa 15 Jahre alten Bestand anpassen.
![]()
Wie Bürgermeister Stefan Meisenberg auf OA-Nachfrage berichtet, werden die aus Haushaltsmitteln zu finanzierenden Maßnahmen auch nötig, um künftig im Katastrophenschutz besser aufgestellt zu sein. Die Lagerung von Sandsäcken zum Beispiel ermöglicht einen schnellen Zugriff bei Hochwasserlagen, auch die aktuelle Lage in der Ukraine hatte bei den Planungen eine Rolle gespielt. „Menschen können im Ernstfall nicht zwischen Feuerwehrautos versorgt werden“, sagt Meisenberg. Deshalb wurde ausreichender Raum in der 40x12 Meter großen Fahrzeughalle eingeplant.
![]()
Ebenfalls hat man die immer größer werdenden Fahrzeuge erücksichtigt und die Stellflächen entsprechend dimensioniert. Das Gremium gab gestern einstimmig grünes Licht für das Vorhaben. Meisenberg hofft, dass das weitere Genehmigungsverfahren zügig vorangeht und man bereits im kommenden Jahr mit dem Bau beginnen kann.
Kirchengelände in Kotthausen
Große bauliche Veränderungen könnten demnächst im Ortsteil Kotthausen anstehen. Baukirchmeister und Architekt Bernd Baßfeld von der evangelischen Gemeinde Hülsenbusch-Kotthausen präsentierte gestern mögliche Pläne für eine künftige Nutzung des etwa 8.500 Quadratmeter großen Grundstücks rund um die Kirche an der Kreuzung Kotthauserhöhe. Aufgrund zurückgehender Mitgliederzahlen und schwindender Pfarrstellen auch in seiner Gemeinde hatte man überlegt, das Gotteshaus aus den 1950er-Jahren zu schließen. Das angrenzende Pfarrhaus muss dem Abrissbagger zum Opfer fallen, die etwa 50 Jahre alte Bausubstanz dort ist morsch. Um das Areal aber nicht aufgeben zu müssen, erhofft man beim Gemeindevorstand, dort künftig günstigen Wohnraum anbieten zu können.
![]()
[Günsiger Wohnraum könnte auf dem Kirchenparkplatz entstehen.]
Das soll in Form von bis zu 30 sogenannten Tinyhäusern und einem Massivgebäude mit zehn Einheiten vom jeweils etwa 20 bis 30 Quadratmetern Fläche realisiert werden. „Unsere Zielgruppe sind Studenten und Menschen mit geringem Einkommen“, so Baßfeld. Rund 500 Euro pro Monat würde ein solches Stelzenheim mit unter dem Wohnraum liegenden Stellplatz in etwa kosten. Die Infrastruktur sei durch den bereits vorhandenen Parkplatz optimal. Man befinde sich in einem sehr frühen Stadium der Überlegungen, zu klären sei unter anderem auch, wie man mit der verkehrsreichen und dadurch lauten Kreuzung in unmittelbarer Nachbarschaft umgeht.
![]()
[Das Pfarrhaus soll abgerissen werden.]
Derzeit erlaubt der Flächennutzungsplan eine kirchliche Nutzung und könnte dadurch relativ kurzfristig auf Wohnraumnutzung erweitert werden, ohne eine langwierige Änderung durchführen zu müssen. Was mit dem Kirchengebäude geschieht, ist noch unklar. Entwidmet wird es zunächst nicht, vom Umbau für eine multifunktionale Nutzung bis hin zum Abriss ist derzeit Teil der Überlegungen.
Ausschuss kompakt
- Mehrheitlich bei einer Gegenstimme der UWG hat der Ausschuss den Weg für den weiteren Umbau des Ortskerns im Rahmen des Integrierten Stadtentwicklungskonzepts (ISEK) freigemacht. Dies betrifft zum einen den teilweisen Rückbau der Parkplätze auf dem Heier Platz und zum anderen die Erweiterung der bestehenden Stellplätze am Dr.-Oscar-Kayser-Platz.
- Gemeindeplaner Christoph Dreiner stellte gestern eine sogenannte Potenzialflächenanalyse für Photovoltaik-Freiflächenanlagen vor. Unter Berücksichtigung etlicher Faktoren wie Denkmal- und landschaftlicher Kulturschutz, topografische Gegebenheiten und Lage zur Sonne sind nach der Planung 13 Standorte im Gemeindegebiet mit einer Größe von mindestens zwei Hektar übrig geblieben, auf der sich entsprechende Anlagen lohnen würden. Wegen der zu schaffenden Infrastruktur für den Anschluss an das bestehende Stromnetz ist die Installation laut Dreiner erst ab dieser Größe sinnvoll. Über das weitere Vorgehen soll in der nächsten Sitzung diskutiert werden.
KOMMENTARE
Jeder Nutzer dieser Kommentar-Funktion darf seine Meinung frei äußern, solange er niemanden beleidigt oder beschimpft. Sachlichkeit ist das Gebot. Wenn Sie auf Meinungen treffen, die Ihren Ansichten nicht entsprechen, sehen Sie von persönlichen Angriffen ab. Die Einstellung folgender Inhalte ist nicht zulässig: Inhalte, die vorsätzlich unsachlich oder unwahr sind, Urheberrechte oder sonstige Rechte Dritter verletzen oder verletzen könnten, pornographische, sittenwidrige oder sonstige anstößige Elemente sowie Beschimpfungen, Beleidigungen, die illegale und ethisch-moralisch problematische Inhalte enthalten, Jugendliche gefährden, beeinträchtigen oder nachhaltig schädigen könnten, strafbarer oder verleumderischer Art sind, verfassungsfeindlich oder extremistisch sind oder von verbotenen Gruppierungen stammen.Links zu fremden Internetseiten werden nicht veröffentlicht. Die Verantwortung für die eingestellten Inhalte sowie mögliche Konsequenzen tragen die User bzw. deren gesetzliche Vertreter selbst. OA kann nicht für den Inhalt der jeweiligen Beiträge verantwortlich gemacht werden. Wir behalten uns vor, Beiträge zu kürzen oder nicht zu veröffentlichen.
